`So often in using GD&T, people are worried about using it correctly. And this can certainly be a valid concern — geometric tolerancing consists of symbols and rules for how to use them. But we also need to remember that GD&T is a language for communicating design requirements. And like any other language, there may be several ways to say the same thing.
When asked about the proper use of GD&T on a sample drawing, I usually classify individual callouts in one of three ways: 1. A-OK; 2. Illegal; 3. Legal, but doesn’t add any value.
Example of #1:
While the use of datum D as a pattern may seem confusing, this datum usage is perfectly fine.
Example of #2:
This is illegal because flatness cannot reference a datum. (Seems obvious, but I’ve seen this several times on actual drawings!)
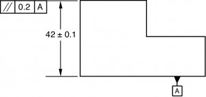
Example of #3:
This one is a little harder to assess. The feature control frame itself is legal, but it’s actually redundant with the 0.2 provided by the height tolerance. There is no way that the top surface could exceed 0.2 anyway, due to the plus/minus on the height dimension.
So keep in mind that GD&T is more than just learning the symbols; it also involves many rules and the interplay of those rules can sometimes be confusing!



wrong about fig 1, Datum D should have basic dimensions controlling its location.
Hello Earlyn,
Datum feature D does have basic dims controlling location — the 14, 16, 40, and 91.2 dimensions.
wrong again, basic dimensions should be referenced from the datum
Earlyn,
Datum feature D is the 4 small holes. And the GD&T on those 4 holes references datums A, B, C.
To you question: Are there any basic dimensions that relate those holes back to A, B, C?
Answer: Yes… there is an implied basic 90 to datum A, a basic of 14 to datum B, and a basic of 16 to datum C. Then, other basic dims chain from there to get to the other 3 holes.
Thus, I’m not sure why you have an issue here.
I understand what Earlyn Petalver is saying he wants to see all basics coming directly from the dtm. (Example 14 and 54 vertical dimensions from dtm B). He would be correct if these weren’t basic dimensions that you could just add up (14+40=54). I to like to see everything dimensioned straight from the applicable dtm.
Question, Example 1, Dtm-d woud become a secondary dtm reference frame, since the degrees of freedom it controls are redundant. Correct?
I suppose it would be most clear when basic dims all originate from the intended datum, but you got it right: For basic dims it doesn’t matter that they’re chained together since they have to tolerance. But for non-basic dimensions he would have been correct.
For your question, yes…datum D is used along with datum A to create a separate datum reference frame from the original datum ref frame of A|B|C. Of course, that should be based on function, not just an arbitrary decision.